To play, press and hold the enter key. To stop, release the enter key.
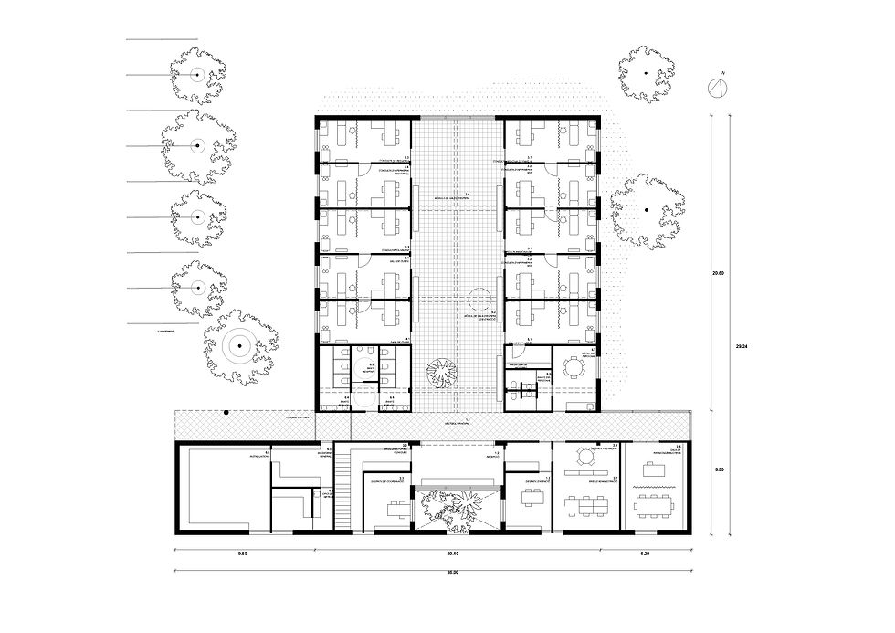
Consell, Mallorca Competition 735m² 2019